河北生產護籠鋼爬梯廠家
點擊量:發表時間:2020-06-15
生產鋼梯護籠,直爬梯 90度 73度 等。
河北逍迪絲網制品有限公司(宣)



河北逍迪絲網制品有限公司(宣)



1 規定
本部分規定了固定式鋼直梯的設計、制造和安裝方面的基本安全要求。
2 規范性引用文件
下列文件中的條款通過 GB4053 的本部分的引用而成為本部分的條款。凡是注日期的引用文件,其隨后所有的修改單(不包括勘誤的內容)或修訂版均不適用于本部分,然而,鼓勵根據本部分達成協議的各方研究是否可使用這些文件的新版本。凡是不注日期的引用文件,其最新版本適用本部分。
GB4053.3 固定式鋼梯及平臺安全要求 第3部分:工業防護拉桿及鋼平臺
GB50057 建筑物防雷設計規范
GB50205 鋼結構工程施工質量驗收規范
3 術語和定義
下列術語和定義適用于本部分。
3.1 固定式鋼直梯 fixed steel ladder
永久性安裝在建筑物或設備上,與水平面呈 75°~90°傾角主要構件為鋼材制造的直梯(見圖1)。
3.2 梯梁(梯框) stile (rail )
用來安裝踏棍或其他橫向承載件的梯子側邊構件。
3.3 踏棍 rung
使用者上下梯子時腳踩踏的梯子構件。
3.4 護籠(安全防護籠) cage (cage guard )
安裝在梯梁或固定結構上,封閉梯子周圍攀登空間防止人員墜落的框架結構。
3.5 支撐 support
用來將鋼直梯固定在建筑物或設備上的構件。
3.6 (直梯)扶手 handrail
鋼直梯頂端供攀登者手握的構件。
3.7 內側凈寬度 inside clear width
兩梯梁內側平行于踏棍測量的距離,簡稱梯寬。
3.8 梯段高度 height of the ladder
梯子上端基準面至 基準面的垂直距離,簡稱梯高。
4 一般要求
4.1 材料
4.1.1 鋼直梯采用鋼材的力學性能不低于 Q235-B,并具有碳含量合格保證。
4.1.2 支撐宜采用角鋼、鋼板或鋼板焊接成 T 型鋼制作,埋沒或焊接時必須牢固可靠。
4.2 鋼直梯傾角
鋼直梯應與固定的結構表面平行并盡可能垂直水平面設置。當條件限制不能垂直水平面時,兩梯梁中心線所在平面與水平面傾角應在 75°~90°范圍內。
4.3 設計載荷
4.3.1 梯梁設計載荷按組裝固定后其上端承受 2kN 垂直集中活載荷計算(高度按支撐間距選取,無中間支撐時按兩端固定點距離選取)。在任何方向上的撓曲變形應不大于2mm。
4.3.2踏棍設計載荷按在其中點承受1kN崔志集中活載荷計算。允許撓度不大于踏棍長度的1/250。
4.3.3每對梯子支撐載荷按在其中點承受3kN的垂直載荷及0.5kN的拉出載荷。
4.4 制造安裝
4.4.1 鋼直梯應采用焊接連接,焊接要求應符合 GB50205 的規定。采用其他方式連接時,連接強度應不低于焊接。安裝后的梯子不應有歪斜、扭曲、變形及其他缺陷。
4.4.2執照安裝工藝應確保梯子及其所有部件的表面光滑、無銳邊、尖角、毛刺或其他可能對梯子使用者造成傷害或妨礙其通過的外部缺陷。
4.4.3安裝在固定結構上的鋼直梯,應下部固定,其上部的支撐于固定結構牢固連接,在梯梁上開設長圓孔,采用螺栓連接。
4.4.4固定在設備上的鋼直梯當溫差較大時,相鄰支撐中應一對支撐完全固定,另一對支撐在梯梁上開設長圓孔,采用螺栓連接。
4.5 防銹及防腐蝕
4.5.1固定式鋼直梯的設計應使其積留濕氣最小,以減少梯子的銹蝕和腐蝕。
4.5.2根據鋼直梯使用場合及環境條件,應對梯子進行合適的防銹及防腐涂裝。
4.5.3在自然環境中使用的梯子,應對其至少涂一層底漆或一層(或多層)漆面;或進行熱浸鍍鋅,或采用等效的金屬保護方法。
4.5.4在持續潮濕條件下使用的梯子,建議進行熱浸鍍鋅,或采用特殊涂層或采用耐腐蝕材料。
4.6 接地
在室外安裝的鋼直梯和連接部分的雷電保護,連接和接地附件應符合GB50057的要求。
5 結構要求
5.1 支撐間距
5.1.1無基礎的鋼直梯,至少焊接兩隊支撐,將梯梁固定在結構、建筑物或設備上。相鄰兩對支撐的豎向間距,應根據梯梁截面尺寸、梯子內側凈寬度及其在鋼結構或混凝土結構的拉拔載荷特性確定。
5.1.2當梯梁采用60mm×10mm的扁鋼,梯子內側凈寬度為400mm時,相鄰兩對支撐的豎向間距不應大于3000mm。
5.2 梯子周圍空間
5.2.1對未設防護籠的梯子,有踏棍中心線到攀登面最近的連續性表面的垂直距離不應小于 760mm。對于非連續性障礙物,垂直距離不應小于600mm。
5.2.2由踏棍中心線到梯子后側建筑物、結構或設備的連續性表面垂直距離不應小于180mn。對非連續性障礙物,垂直距離不應小于150mm(見圖1)。
5.2.3對未設防護籠的梯子,梯子中心線到側面最近的永久性物體的距離均應小于380mm。
5.2.4對前向的進出式梯子,頂端踏棍上表面與到達平臺或屋面平齊,由踏棍中心線到前面最近的結構、建筑物或設備邊緣的距離應為180mm~300mm , 必 要 時 應 提 供 引 導 平 臺 使 通 過 距 離 減 少 至180mm~300mm。
5.2.5側向進出式梯子中心線至平臺或屋面距離應為380mm~500mm。梯梁外側與平臺或屋面之間距離應為180mm~300mm(見圖2)。
5.3 梯段高度及保護要求
5.3.1單段梯高宜不大于10n,攀登高度大于10m時宜采用多段梯,梯段水平交錯布置,并設提間平臺,平臺垂直間距離宜為 6m。單段梯及多段梯的梯高均應不大于15m。
5.3.2 梯段高度大于 3m 是宜設置安全護籠。單梯段高度不大于 7m,應設置安全護籠。當攀登高度小于 7m,但梯子頂部在地面、地板或屋頂之上高度大于7m時,也應設安全護籠。
5.3.3當護籠用于多段梯時,每個梯段應與相鄰的梯段水平交錯并由足夠的間距(見圖2),設有適當空間的安全進、出引導平臺,以保護使用者的安全。
5.4 內側凈寬度
5.4.1梯梁間踏棍供踩踏表面的內側凈寬度應為400mm~600mm,在同一攀登高度上該寬度應相同。由于工作面所限,攀登高度在 5m 以下時,梯子內側凈寬度可小于400mm,但不應小于300mm。
5.5 踏棍
5.5.1梯子的整個攀登高度上所有的踏棍垂直距離應相等,相鄰踏棍垂直距離應為225mm~300mm,梯子下端的第一級踏棍距基準面距離應不大于450mm(見圖1)。
5.5.2圓形踏棍直徑應不小于20mm,若采用其他截面形狀的踏棍,其水平方向深度不應小于20 mm。
5.5.3 在正常環境下使用的梯子,踏棍應采用直徑不小于 20 mm 的圓鋼,或等效力學性能的正方形、長方形或其他形狀的實心或空心型材。
5.5.4在非正常環境(如潮濕或腐蝕)下使用的梯子,踏棍應采用直徑不小于25 mm的圓鋼,或等效力學性能的正方形、長方形或其他形狀的實心或空心型材。
5.5.5踏棍應相互平行且水平設置。
5.5.6在因環境條件有可預見的打滑風險時,應對踏棍采區附加的防滑措施。
5.6 梯梁
5.6.1 梯梁的表面形狀應使其整改攀登高度上能為使用者提供一致的平滑手握表面,不應采用不便于手握緊的不規則形狀截面(如大角鋼、工字鋼梁等)的梯梁。在同一攀登高度上梯梁應保持相同形狀。
5.6.2在正常環境下使用的梯子,梯梁應采用下雨60 mm×10 mm的扁鋼,或具有等效強度的其他實心或空心型材。
5.6.3在非正常環境(如潮濕或腐蝕)下使用的梯子,梯梁應采用不小于60 mm×12 mm的扁鋼,或具有等效強度的其他實心或空心型材。
5.6.4在整個梯子的同一攀登長度上梯梁截面尺寸應保持一致。容許長細比不宜大于200。
5.6.5梯梁所有接頭應設計成保證梯梁整個結構的連續性。除非所用材料型號有要求,不應在中間支撐處出現接頭。
5.6.6 如果要對梯梁因溫度保護引起膨脹產生彎曲或應力增大采取針對性技術措施,則應在接頭處采取上述措施。
5.6.7前向或側向進出式梯子的梯梁應延長至梯子頂部進、出平面或平臺頂面之上高度不小于GB4053.3中規定的欄桿高度。
5.6.8前向進出式梯子的頂部踏棍不應省略。梯梁延長段宜為喇叭型擴大,以使梯梁頂部內側水平間距不小于600 mm,不大于760 mm。
5.6.9對側向進出式梯子,梯梁和踏棍在延長段應為連續的。
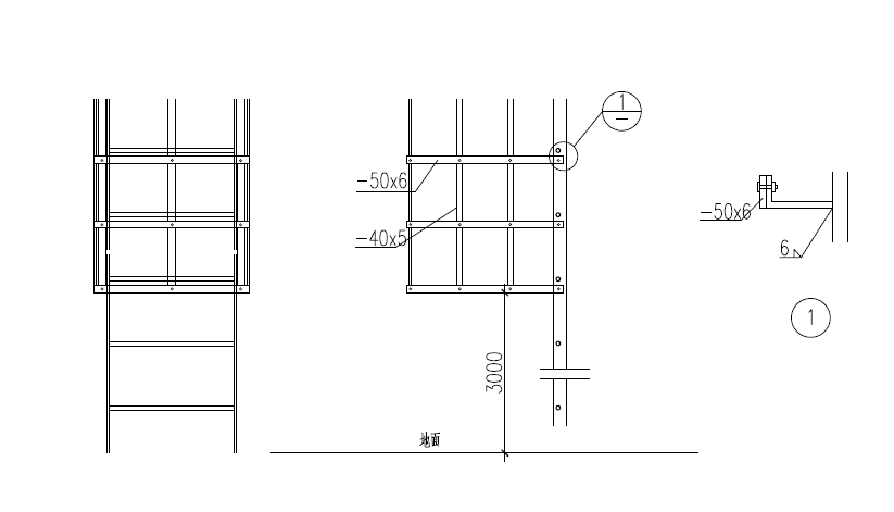
5.7 護籠
5.7.1護籠宜采用圓形結構,應包括一張水平籠箍和至少5根立桿(見圖3)。其等效機構也可采用。
5.7.2水平籠箍采用不小于50 mm×6 mm的扁鋼,立桿采用不小于40mm×5 mm的扁鋼。水平籠箍應固定到梯梁上,立桿應在水平籠箍內側并間距相等,與其牢固連接。
5.7.3護籠應能支撐梯子預定的活載荷或恒載荷。
5.7.4護籠內側深度有踏棍中心線起應不小于650 mm,不大于800 mm,圓形護籠的直徑應為650 mm~800 mm,其他形式的護籠內側寬度不應小于650 mm,不大于800 mm。護籠內側應無任何突出物
5.7.5 水平籠箍垂直間距不應大于 1500 mm。立桿間距不應大于 300mm,均勻分布。護籠各構件形成的最大空隙應不大于0.4m 2 。
5.7.6護籠底部距梯段下端基準面不應小于2100 mm,不大于3000 mm。護籠的底部宜呈喇叭型,此時其底部水平籠箍和上一級籠箍間在圓周上的距離不小于100mm。
5.7.7 護籠頂部在平臺或梯子頂部進、出平面之上的高度不應小于GB4053.3中規定的欄桿高度,并由進、出平臺的措施或進出口。
5.7.8未能固定到梯梁上的平臺以上或進、出口以上的護籠部件應固定到護欄上或直接固定到結構、建筑物或設備上。
第2部分:鋼斜梯
1 范圍
本部分規定了固定式鋼斜梯的設計、制造和安裝方面的基本安全要求。
2 規范性引用文件
下列文件中的條款通過 GB4053 的本部分的引用而成為本部分的條款。凡是注日期的引用文件,其隨后所有的修改單(不包括勘誤的內容)或修訂版均不適用于本部分,然而,鼓勵根據本部分達成協議的各方研究是否可使用這些文件的新版本。凡是不注日期的引用文件,其最新版本
適用本部分。
GB4053.3 固定式鋼梯及平臺安全要求 第3部分:工業防護拉桿及鋼平臺
GB50057 建筑物防雷設計規范
GB50205 鋼結構工程施工質量驗收規范
3 術語和定義
下列術語和定義適用于本部分。
3.1 固定 式鋼斜梯 fixed steel inclined ladder
永久性安裝在建筑物或設備上,與水平面成30°~75°°傾角的踏板鋼梯(見圖1)。
3.2 梯梁(梯框) stile (rail )
用來安裝踏棍或其他橫向承載件的梯子側邊構件。
3.3 踏 板 tread (step )
供使用者上下梯子時腳踩踏的梯子水平構件,其前后深度不小于80mm。
3.4 踏步高 rise
相鄰兩踏板間的垂直距離。
3.5 踏步寬 going
相鄰兩踏板突緣間的水平距離。
3.6 內側凈寬度 inside clear width
兩梯梁內側平行于踏板測量的距離,簡稱梯寬。
3.7 梯段高度 height of the ladder
梯子上端基準面至 基準面的垂直距離,簡稱梯高。
3.8 扶手 (系統) handrail (system )
安裝在斜梯外側邊緣保護人員俺去的阻擋型框架結構。當其作為斜梯扶手系統部件名稱時,是由使用者手握作為支撐并與梯段傾角現平行的扶手系統構件。
3.9 傾角 angle of pitch
兩梯梁中心線所在平面與水平面的夾角。
4 一般要求
4.1 材料
鋼斜梯采用鋼材的力學性能應不低于 Q235-B,并具有碳含量合格保證
.2 鋼斜梯傾角
4.2.1 固定式鋼斜梯與水平面的傾角應在 30°~75°范圍內,優選傾角為30°~35°。偶爾性進入的最大傾角宜為42°。經常性雙向通行的最大傾角應為38°。
4.2.2在同一梯段內,踏步高與踏步寬的組合應保持一致。踏步高與踏步寬的組合應符合式(1)的要求:550≦g+2r≦700……………………(1)式中:g——踏步寬,單位為毫米(mm);r——踏步高,單位為毫米(mm)。
4.2.3常用的鋼斜梯傾角與對應的踏步高r、踏步寬g組合(g+2r=600)示例見表1,其他傾角可按線性插值法確定。
4.2.4常用鋼斜梯傾角和高跨比(H:L)
4.2.4常用鋼斜梯傾角和高跨比(H:L)
5.4 梯梁
梯梁應有足夠的剛度以使結構橫向撓曲變形最小,并由底部踏板的突緣向前突出不小于50mm(見圖1)。
5.5 梯子通行空間
5.5.1在斜梯使用者上方,由踏板突緣前端到上方障礙物沿梯梁中心線垂直方向測量距離不小于1200mm。
5.5.2在斜梯使用者上方,由踏板突緣前端到上方障礙物的崔志距離應不小于2000mm。
5.6 扶手
5.6.1梯寬不大于1100mm兩側封閉的斜梯,應至少一側有扶手,宜設在下梯方向的右側。
5.6.2梯寬不大于1100mm一側敞開的斜梯,應至少在敞開一側裝有梯子扶手。
5.6.3梯寬不大于1100mm兩邊敞開的斜梯,應在兩側均安裝梯子扶手。
5.6.4梯寬大于1100mm單不大于2200mm的斜梯,無論是否封閉,均應在兩側安裝扶手。
5.6.5梯寬大于2200mm的斜梯,除在兩側安裝扶手外,在梯子寬度的中線處應設置中間欄桿。
5.6.6梯子扶手中心線應與梯子的傾角線平行。梯子封閉邊扶手的高度由踏板突緣上表面扶手的上表面垂直測量應不小于 860mm,不大于960mm。
5.6.7斜梯敞開邊的扶手高度應不低于GB4053.3中規定的欄桿高度。
5.6.8扶手應沿著其整個長度方向上連續可抓握。在扶手外表面與周圍其它物體間的距離不小于60mm。
5.6.9 扶手宜為外徑 30mm~50mm,厚壁不小于 2.5mm 的圓形鋼材。對于非圓形鋼材的扶手,其周長應為100mm~160mm。非圓形截面外接圓直徑應不大于57mm,所有邊緣應為弧形,圓角半徑不小于3mm。
5.6.10支撐扶手的立柱宜采用截面不小于40mm×40mm×40mm角鋼或外徑為 30mm~50mm 的管材。從第一級踏板開始設置,間距不宜小于1000mm。中間欄桿采用直徑不小于16mm圓鋼或30mm×4mm扁鋼,固定在立柱中部。
第3部分: 工業防護欄桿及鋼平臺
1 范圍
本部分規定了固定式工業防護欄桿及鋼平臺的設計、制造和安裝方面的基本安全要求。本部分適用于工業企業內工作場所中使用的防護欄桿及鋼平臺(另有標準規定的除外)。
2 規范性引用文件
下列文件中的條款通過 GB4053 的本部分的引用而成為本部分的條款。凡是注日期的引用文件,其隨后所有的修改單(不包括勘誤的內容)或修訂版均不適用于本部分,然而,鼓勵根據本部分達成協議的各方研究是否可使用這些文件的新版本。凡是不注日期的引用文件,其最新版本適用本部分。
GB50205 鋼結構工程施工質量驗收規范
3 術語和定義
下列術語和定義適用于本部分。
3.1 固定式 工業防護欄桿 fixed industrial guardrail
永久性安裝在梯子、平臺、通道、升降口及其他敞開邊緣防止人員墜落的框架結構,簡稱護欄(見圖1)。
3.2 扶手 ( 頂部欄桿 ) handrail (top-rail )
可供手握作為支撐并有阻擋功能的防護欄桿頂部構件。
3.3 中間欄桿(橫桿) intermediate rail (knee-rail )
安裝在頂部欄桿和地板之間的防護欄桿水平構件。
3.4 立柱 ( 支柱 ) post (stanchion )
與平臺或其他固定結構連接,支撐防護欄桿的垂直構件。
3.5 腳踏板(擋板) toe board (toe plate ,kick ,plate )
沿平臺、通道或其他敞開邊緣垂直設置,用來防止物體墜落(或人員滑出)的防護欄桿構件。
3.6 平臺 platform
在周圍區域平面以上有可供人員工作或站立的平面結構。
3.7 固定式工業平臺 fixed industrial steel platform
永久性安裝在建筑物或設備上供人員工作、休息或通行的鋼制平臺。
3.7.1 工作平臺 work platform
裝有要求的防護裝置,供人員進行工作活動的平臺。
3.7.2 梯間平臺(中間平臺、休息平臺) landing (intermediate
platform ,rest platform
相鄰梯段間供人員休息或改變行進方向的平臺。
3.7.3 通行平臺(通道) walking platform (walkway ,runway )
供人員由一個區域到另一個區域行走的平臺。
4 一般要求
4.1 防護要求
4.1.1 距下方相鄰地板或地面 1.2m 及以上的平臺、通道或工作面得所有敞開邊緣應設置防護欄桿。
4.1.2在平臺、通道或工作面上可能使用工具、機器部件或物品場合,應在所有敞開邊緣設置帶踢腳板的防護欄桿。
4.1.3在酸洗或電鍍、脫脂等危險設備上方或附近的平臺、通道或工作面的敞開邊緣,均應設置帶踢腳板的防護欄桿。
4.1.4當平臺設有滿足踢腳板功能及強度要求的其他結構邊沿時,防護欄桿可不設踢腳板。
4.2 材料
防護欄桿及鋼平臺采用鋼材的力學性能應不低于Q235-B,并具有碳含量合格保證。
4.3 防護欄桿設計載荷
4.3.1 防護欄桿安裝后頂部欄桿應能承受水平方向和垂直向下方向不小于 890N 集中載荷和不小于 700N/m 均布載荷。在相鄰立柱間的最大撓曲變形應不大于跨度的 1/250。水平和垂直載荷以及集中和均布載荷均不疊加。
4.3.2 中間欄桿應能承受在中點圓周上施加不小于 700N 水平集中載荷,最大撓曲變形不大于75mm。
4.3.3 端部或末端立柱應能承受在立柱頂部施加的任何方向上890N 的集中載荷。
4.4 鋼平臺設計載荷
4.4.1鋼平臺的設計載荷應按實際使用要求確定,并應不小于本部分規定的值。
4.4.2整個平臺區域內應能承受不小于3kN/m 2均勻分布活載荷。
4.4.3 在平臺區域內中心距為 1000mm,邊長 300mm 正方形上應能承受不小于1kN集中載荷。
4.4.4 平臺地板在設計載荷下的撓曲變形應不大于 10mm 或跨度的1/200,兩者取小值。
4.5 制造安裝
4.5.1 防護欄桿及鋼平臺應采用焊接連接,焊接要求應符合 GB50205的規定。當不便焊接時,可用螺栓連接,但應保證設計的結構強度。安裝后的防護欄桿及鋼平臺不應有歪斜、扭曲、變形及其他缺陷。
4.5.2 防護欄桿制造安裝工藝應確保梯子及其所有構件及其連接部分表面光滑、無銳邊、尖角、毛刺或其他可能對人員造成傷害或妨礙其通過的外部缺陷。
4.5.3鋼平臺和通道不應僅靠自重安裝固定。當采用僅靠拉力的固定件時,其工作載荷系數應不小于1.5。設計時應考慮腐蝕和疲勞應力對固定件壽命的影響。
4.5.4安裝后的平臺鋼梁應平直,鋪板應平整,不應有歪斜、翹曲、變形及其他缺陷。
4.6 防銹及防腐蝕
4.6.1 防護欄桿及鋼平臺應使其積村水和濕氣最小,以減少銹蝕和腐蝕。
4.6.2根據防護欄桿及鋼平臺使用場合及環境條件,應對其進行合適的防銹及防腐涂裝。
4.6.3防護欄桿及鋼平臺安裝后,應對其至少涂一層底漆或一層(或多層)面漆或采用等效的防銹防腐涂裝。
5 防護欄桿 結構要求
5.1 結構 形式
5.1.1 防護欄桿應采用包括扶手(頂部欄桿)、中間欄桿和立柱的結構形式或采用其他等效的機構。
5.1.2防護欄桿各構件的不知應確保中間欄桿(橫桿)與上下構件間形成的空隙間距不大于500mm。構件設置方式應阻止攀爬。
5.2 欄桿高度
5.2.1當平臺、通道及作業場所距基準面高度小于2m時,防護欄桿高度應不低于900mm。
5.2.2當距基準面高度大于等于2m并小于20m的平臺、通道及作業場所的防護欄桿高度應不低于1050mm。
5.2.3 在距基準面高度不小于 20m 的平臺、通道及作業場所的防護欄桿高度應不低于1200mm。
5.3 扶手
5.3.1扶手的設計應允許手能連續滑動。扶手末端應以曲折端結束,可轉向支撐墻,或轉向中間欄桿,或轉向立柱,或布置成避免扶手末端突出結構。
5.3.2 扶手宜采用鋼管,外徑應不小于30mm,不大于50mm。采用非圓形截面扶手,截面外接圓直徑應不大于57mm,圓角半徑不小于3mm。
5.3.3扶手后應有不小于75mm的凈空間,以便于手握。
5.4 中間欄桿
5.4.1在扶手和踢腳板之間,應至少設置一道中間欄桿。
5.4.2中間欄桿宜采用不小25mm×4mm扁鋼或直徑16mm的圓鋼。中間欄桿與上、下方構件的空隙間距不大于500mm。
5.5 立柱
5.5.1 防護欄桿端部應設置立柱或確保與建筑物或其他固定結構牢固連接,立柱間距應不大于1000mm。
5.5.2立柱不應在踢腳板上安裝,除非踢腳板為承載的構件。
5.5.3立柱因采用不小于50mm×50mm×4mm角鋼或外徑30mm~50mm鋼管。
5.6 踢腳板
5.6.1 踢腳板頂部在平臺地面之上高度應不小于 100mm,其底部距地面應不大于10mm。踢腳板宜采用不小于100mm×2mm的鋼板制造。
5.6.2在室內的平臺、通道或地面,如果沒有排水或排除有害液體妖氣,踢腳板下端可不留空隙。
6 鋼平臺結構要求
6.1 平臺尺寸
6.1.1工作平臺的尺寸應根據預定的使用要求及功能確定,但應不小于通行平臺和梯間平臺(休息平臺)的最小尺寸。
6.1.2 通行平臺的無障礙寬度應不小于 750mm,單人偶爾通行的平臺寬度可適當減小,單應不小于450mm。
6.1.3梯間平臺(休息平臺)的寬度應不小于梯子的寬度,且對直梯應不小于 700mm,斜梯應不小于 760mm,兩者取較大值。梯間平臺(休息平臺)在行進方向的長度應不小于梯子的寬度,且對直梯應不小于700mm,斜梯應不小于850mm,兩者取較大值。
6.2 上方空間
6.2.1平臺地面到上方障礙物的垂直距離應不小于2000mm。
6.2.2對于僅限于單人偶爾使用的平臺,上方障礙物的垂直距離可適當減少,但不應少于1900mm。
6.3 支撐結構
平臺應安裝在牢固可靠的支撐結構上,并與其剛性連接;梯間平臺(休息平臺)不應懸掛在梯段上。
6.4 平臺地板
6.4.1 平臺地板宜采用不小于 4mm 厚的花紋鋼或經防滑處理的鋼板鋪裝,相鄰鋼板不應搭接。相鄰鋼板上表面的高度差應不大于4mm。
6.4.2工作平臺和梯間平臺(休息平臺)的地板應水平設置。通行平臺地板與水平面的傾角應不大于10°,傾斜的地板應采取防滑措施。
相關資訊
- 2021-06-15
WA203/1 WB203/2 在鋼格板中是什么意思?..
- 2020-06-22
鋼梯圖片15J401圖集02J401圖集中柱式鋼..
- 2020-06-15
斜體間平臺@屋面檢修鋼梯@上段中段下..
- 2020-06-15
15J401圖集02J401圖集@上吊車平臺@中柱式..
- 2020-06-15
河北逍迪鋼梯護籠@直爬梯@材質Q235-..
- 2020-06-15
河北生產護籠鋼爬梯廠家..
- 2020-03-09
北京通州區鋁合金鋼格柵板@踏步板溝..
- 2019-12-10
冷熱鍍鋅處理鋼格柵板 材質Q235B 不銹..
- 2019-08-21
河北逍迪絲網制品有限公司,新增產..
- 2019-05-22
格柵板廠家擁有專業CAD制圖人員,可..
- 2019-05-22
扁鋼對鋼格板質量的好壞的影響..
- 2019-05-21
安平鋼格板廠之間的低價競爭行為..
- 2019-05-21
復合型鋼格板的優勢__逍迪絲網..
- 2019-05-21
熱鍍鋅鋼格板的幾個優點..
- 2019-05-21
鋁格柵/鋁格板/鋁合金格柵板/鋁合金..
- 2019-05-21
玻璃鋼樹耙子/合金格柵/河北逍迪絲網..
- 2019-05-21
鋼格板護欄是指用鋼格板做成的護欄..
- 2019-05-21
針對不銹鋼冶煉特性..
- 2019-05-21
格柵板/鍍鋅格柵板/平臺格柵板..
- 2019-05-21
鋼格板的區別分類是什么..
- 2019-05-21
鋼格板廠/河北逍迪絲網制品有限公司..
- 2019-05-20
購買鋼格板時要注意的問題..
- 2019-05-20
熱鋼格板怎么辨別好壞..
- 2019-05-20
鋼格板原材料選材的注意事項..
- 2019-05-09
鋼格板規格WA255/1-G(WT1)、WB203/1是什么..
- 2018-12-31
熱鋼鋼格板的運輸環節很重要..
- 2018-12-30
熱鋼格板是由Q235材質的扁鐵焊接而成..
- 2018-12-29
鋼格板產品的特性決定了必須要收取..
- 2018-12-28
如何確認鋼格板承載扁鋼方向..
- 2018-12-27
鋼梁與鋼格板如何連接..
- 2018-12-26
關于鋼格板還有哪些疑問急需探討?..
- 2018-12-25
如何從外觀上看出鍍鋅鋼格板的好壞..
- 2018-12-24
鋼鐵廠專用鋼格板的裝卸運輸的注意..
- 2018-12-23
如何降低鋼格板采購成本..
- 2018-12-22
平臺鋼格板簡介...
- 2018-12-21
鋼溝蓋鋼格板在安裝時需要注意什么..
- 2018-12-20
哪些因素會導致平臺鋼格板的使用壽..
- 2018-12-19
熱鋼鋼格板廠家的交貨期限是多久?..
- 2018-12-18
平臺鋼格板的規格以及材料要求..
- 2018-12-17
熱浸鋅如何有效的對鋼格板進行防腐..
- 2018-12-16
齒形鋼格板生產和安裝有什么要求..
- 2018-12-15
不銹鋼格是一種永久性的鋼格板..
- 2018-12-14
鋼格板的引入,生產和發展前景..
- 2018-12-13
格板之玻璃鋼格板的市場前景..
- 2018-12-12
如何從各種各樣的鋼格板中選出合格..
- 2018-12-11
原來鋼格板還有這么多的優點..
- 2018-12-10
怎么才能讓異型鋼格板發揮更大的使..
- 2018-12-09
環保鋼格板的發展應用的優勢..
- 2018-12-08
不符合質量標準的鋼格板一律不允許..
- 2018-12-07
不同類型的熱鋼鋼格板有什么不同..
- 2018-12-06
應及時蓋嚴,應符合以下規則鋼格板..
- 2018-12-05
鋼格板在噴漆之前應該做什么準備..
- 2018-12-04
熱鋼熱鋼鋼格板安裝夾注意事項..
- 2018-12-03
運輸熱鋼鋼格板的過程中應該重視甚..
- 2018-12-02
鋼格板的未來發展走向..
- 2018-12-01
那些因素導致鋼格板鋼材產品價格上..
- 2018-11-29
怎么判斷鋼格板的扁鋼方向..
- 2018-11-28
造成鋼格板變形的因素有那些..
- 2018-11-27
無論是熱電廠或水電廠還是用鋼格板..
- 2018-11-26
鋼格板怎么安裝,安裝中應該注意哪..
- 2018-11-25
插接鋼格板的四種常見類型..
- 2018-11-24
鋼格板平臺選擇什么樣的可以防止行..
- 2018-11-23
跟著鋼格板產物的運用越來越普遍..
- 2018-11-22
購買鋼格板這些誤區一定不能犯..
- 2018-11-20
酸霧測試可以檢測出鋼格板的耐腐蝕..
- 2018-11-19
熱鋼鋼格板和電鋼鋼格板的區別..
- 2018-11-18
鋼格板在進行包裝和焊接的時候要注..
- 2018-11-17
怎樣選擇合適的安裝鋼格板的方法..
- 2018-11-16
熱鋼鋼格板都用在了什么地方呢?..
- 2018-11-15
別具一格的鋼格板,在城市規劃中起..
- 2018-11-14
怎么才能選擇到合適的鋼格板..
- 2018-11-12
玻璃鋼格板和鋼鋼格板之間的差別有..
- 2018-11-11
為什么石油化工廠用熱鋼鋼格板?..
- 2018-11-10
壓鎖鋼格板的特點和種類..
- 2018-11-09
采購鋼格板的時候需要注意的事項..
- 2018-11-08
鋼格板特點鮮明 用途極其廣泛..
- 2018-10-31
穿孔鋼格板平臺板介紹..
- 2018-10-29
不銹鋼鋼格板鋼格板具有較強的耐腐..
- 2018-10-28
原來鋼格板焊接有這么多講究..
- 2018-10-27
而對曳引繩磨損并卡繩鋼格板..
- 2018-10-26
鋼格告訴你怎樣避免鋼格板在裝卸時..
- 2018-10-25
密性鋼格板介紹和用途..
- 2018-10-24
不同規格系列的鋼格板的不同用途..
- 2018-10-23
各種重承載大跨度平臺用鋼格板來代..
- 2018-10-22
熱鋼鋼格板種類、應用...
- 2018-10-21
玻璃鋼格和鋼格板的缺點與不足..
- 2018-10-20
鋼格板作用以及在生活中的運用有哪..
- 2018-10-19
中國鋼格板的發展歷史..
- 2018-10-18
插接鋼格板在格板行業異軍突起..
- 2018-10-17
如何避免鋼格板脫鋅..
- 2018-10-16
熱鋼鋼格板廣泛用于新舊路基的鋪蓋..
- 2018-10-15
怎么解決熱鋼鋼格板表面粗糙問題..
- 2018-10-14
防滑鋼格板的原料組成及其優勢..
- 2018-10-13
鋼格板的主要分類有哪些..
- 2018-10-12
熱鋼鋼格板和不銹鋼格板的防銹、抗..
- 2018-10-11
揭秘洗車房大量使用鋼格板的原因..
- 2018-10-10
網格板采油平臺也是這鋼格板個事理..
- 2018-10-09
隨著社會的發展和人們生活水平的提..
- 2018-10-08
踏鋼格板步板需要制造成各種尺寸..
- 2018-10-07
挑選材料適合用途的鋼格板有妙招..
- 2018-10-06
防止電廠鋼格板安全事故發生的措施..
- 2018-10-05
熱鋼鋼格板操縱手工與機器壓焊的差..
- 2018-10-04
成品鋼格板是你安裝鋼梯的首選..
- 2018-10-03
關于鋼格板采購成本預算的選擇..
- 2018-10-02
鋼格板市場前景廣闊 特點與構造要知..
- 2018-10-01
船用鋼格板所采用的鋼材首先優良的..
- 2018-09-30
鋼格板都是具有哪些種類..
- 2018-09-29
熱鋼格板與電鋼格板有哪些不一樣..
- 2018-09-28
影響鋼格板性能的因素有哪些..
- 2018-09-27
室內鋼格板怎樣維護和保養才更好..
- 2018-09-26
鋼格板采購一些常見問題解答..
- 2018-09-25
如何選擇有保障的鋼格板廠家..
- 2018-09-24
影響鋼格板價格的因素大概有三種..
- 2018-09-23
支承網格板環應鋼格板改用鋼格板抱..
- 2018-09-22
熱鋼鋼格板是怎么分類 有什么標識方..
- 2018-09-21
扁鐵影響鋼格板的價格因素..
- 2018-09-20
鋼格板運到客戶手中變形了怎么辦..
- 2018-09-19
鋼格板的優越性有哪些..
- 2018-09-18
中國鋼格板行業的發展趨勢怎么樣..
- 2018-09-17
插接壓焊鋼格板種類和介紹..
- 2018-09-16
怎樣在施工時減小鋼鋼格板的變形程..
- 2018-09-15
市場錯鋼格板行業構造調劑的倒逼”..
- 2018-08-09
2018年8月7日扁鋼價格和304扁鋼價格..
- 2018-08-07
2018年8月7日扁鋼價格..
- 2018-07-15
標準壓焊鋼格板的生產工藝..
- 2018-07-14
鍍鋅鋼格板報價為何暴升?..
- 2018-07-14
不銹鋼鋼格板的優點及用處..
- 2018-07-14
鍍鋅鋼格板受歡迎的原因..
- 2018-07-13
不銹鋼鋼格板的表面處理..
- 2018-07-12
玻璃鋼用于什么行業..
- 2018-07-12
鍍鋅鋼價格影響因素..
- 2018-07-12
鍍鋅鋼的優點及用處..
- 2018-07-12
電力廠鍍鋅材質平臺報價..
- 2018-07-12
不銹鋼鋼材質產品價格是多少?..
- 2018-07-11
不銹鋼鋼格板酸洗與拋光的區別?..
- 2018-07-06
不銹鋼鋼格板與鍍鋅鋼格板的區別..
- 2018-07-05
不同鋼格柵板用途分類..
- 2018-07-04
不銹鋼鋼格板價格是多少?..
- 2018-07-03
車間用平臺鋼格柵板..
- 2018-07-02
鍍鋅鋼格柵板的采購誤區是什么?..
- 2018-07-01
玻璃鋼格柵板和平臺鋼格柵板的區別..
- 2018-06-30
玻璃鋼格柵板用途廣泛、價格便宜..
- 2018-06-29
插接鋼格板和焊接鋼格板之間的差異..
- 2018-06-28
吊頂鋼格板特色介紹..
- 2018-06-27
齒形鋼格板規格以及分類..
- 2018-06-26
插接鋼格柵板叫法與特點分類..
- 2018-06-25
玻璃鋼格柵板與熱鍍鋅鋼格柵板的優..
- 2018-06-24
插接鋼格柵板的產品特點..
- 2018-06-23
玻璃鋼格柵板廠家哪家好?..
- 2018-06-22
插接鋼格柵板類型介紹..
- 2018-06-21
電廠鋼格柵板廠家..
- 2018-06-20
電廠平臺鋼格柵板焊接注意..
- 2018-06-19
船用鋼格柵板表面處理方式及生產標..
- 2018-06-18
不銹鋼鋼格柵板在國內外的廣泛應用..
- 2018-06-17
齒形鋼格柵板應用于哪些場所?..
- 2018-06-16
玻璃鋼格柵板的十大性能..
- 2018-06-15
玻璃鋼格柵板性能特點..
- 2018-06-14
不銹鋼鋼格板制作方式有哪些..
- 2018-06-13
不銹鋼鋼格板材質及優勢..
- 2018-06-12
玻璃鋼格柵蓋板介紹..
- 2018-06-10
鍍鋅鋼格柵板安裝分析研究..
- 2018-06-09
玻璃鋼格柵板顏色暗淡是什么原因?..
- 2018-06-08
插接鋼格柵板是什么樣的?哪里有賣..
- 2018-06-07
電廠平臺鋼格柵原材料-國內現貨鋼價..
- 2018-06-06
插接鋼格板有幾種類型?..
- 2018-06-05
鍍鋅鋼格柵板的優越性..
- 2018-06-04
齒形鋼格柵板產品介紹..
- 2018-06-03
不銹鋼鋼格板的分類及使用情況..
- 2018-06-02
電廠平臺鋼格柵規格都有哪些..
- 2018-06-01
不銹鋼鋼格柵板的物理性能..
- 2018-05-31
插接鋼格柵板制作與應用..
- 2018-05-30
電廠用熱鍍鋅鋼格柵板..
- 2018-05-29
不銹鋼鋼格柵板也會生銹嗎?..
- 2018-05-29
齒形鋼格柵特點..
- 2018-05-28
不銹鋼鋼格柵板生銹了怎么辦?..
- 2018-05-28
不銹鋼鋼格板按品種區別..
- 2018-05-27
不銹鋼鋼格柵板..
- 2018-05-27
齒形鋼格柵規格型號..
- 2018-05-26
插接鋼格柵板規格介紹..
- 2018-05-26
插接鋼格板與普通平臺鋼格板有哪些..
- 2018-05-25
鍍鋅鋼格板在鍍鋅時應考慮的幾大因..
- 2018-05-25
從鋼格柵板外觀分辨鋼格柵板質量..
- 2018-05-24
齒形鋼格柵板比起普通鋼格柵板的優..
- 2018-05-24
玻璃鋼格柵板性能規格介紹..
- 2018-05-24
鍍鋅鋼格柵板構造特點..
- 2018-05-22
不銹鋼鋼格柵板的廣泛應用..
- 2018-05-22
玻璃鋼格柵板和平臺鋼格柵板的不同..
- 2018-05-21
鍍鋅鋼格柵板和玻璃鋼格柵之間區別..
- 2018-05-21
船用鋼格柵板的要求..
- 2018-05-20
玻璃鋼格柵有哪些特點?..
- 2018-05-20
鍍鋅鋼格柵板廣泛應用..
- 2018-05-19
玻璃鋼格柵蓋板尺寸與應用有哪些..
- 2018-05-19
插接鋼格柵板批發價格..
- 2018-05-18
鍍鋅鋼格柵板的上鋅量..
- 2018-05-18
鍍鋅鋼格柵板的制作方法..
- 2018-05-17
插接鋼格柵板型號規格..
- 2018-05-17
齒形鋼格柵板哪家有現貨?..
- 2018-05-16
玻璃鋼格柵板與熱鍍鋅金屬鋼格柵的..
- 2018-05-16
船用鋼格柵板的選材..
- 2018-05-15
插接鋼格柵板分多少種類型?..
聯系我們

河北逍迪絲網制品有限公司
電話:0318-8881333
傳真:0318-3537271
手機:18203332444 (微信同步)
地址:河北省衡水市安平縣西兩洼鄉后鋪村西120米處







